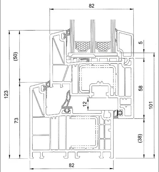
Descriere: Termopanele Salamander Bluevolution 82 sunt soluția ideală pentru eficiența energetică, siguranța și confortul locuinței tale. Cu un coeficient de izolare termică excelent, aceste feronerie de înaltă performanță îți vor reduce costurile cu încălzirea și răcirea, oferind totodată un grad ridicat de izolare fonică.
Caracteristici:
Avantaje:
Preț: Contactați-ne pentru oferte personalizate!